OpenScy Living Capstone
2155 Mayer Road, Kelowna
122 affordable rental units
525 sq ft – 1025 sq ft
Non-smoking, no pets
Capstone is a mix of Subsidized (rent 30% of income) and Market Rental housing.
Applications can be made through the Housing Registry. Or complete the form below if you are interested in our Market units.
All Subsidized placements will be made through the BC Housing Registry, to qualify you must have an active application there. Use Housing Registry Code DSQ when applying for Capstone. To apply click on the unit size and your income range:
Quality Affordable Housing
Seven Story Tower
91 apartments
Mix of 1 bed and 2 bedroom units
Open concept includes fridge, stove, A/C, and (dishwasher 2 bedroom only)
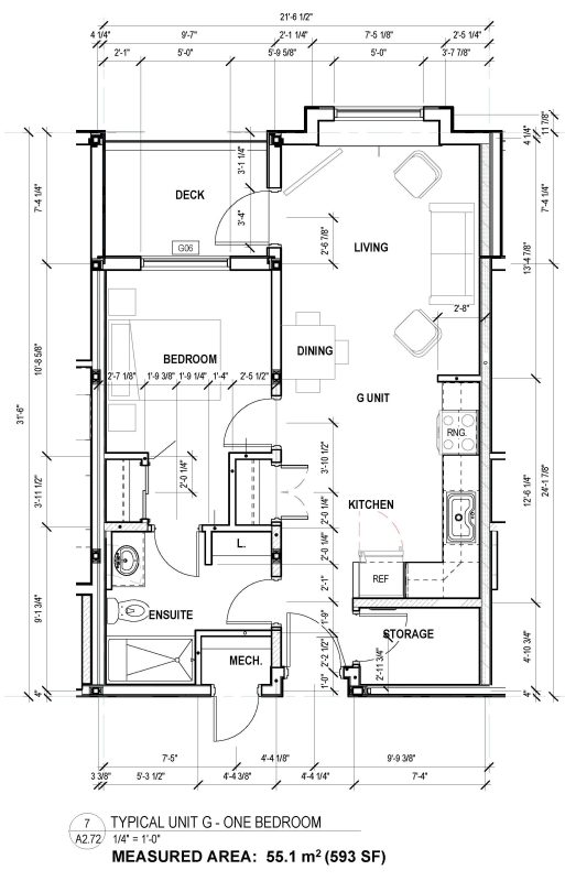
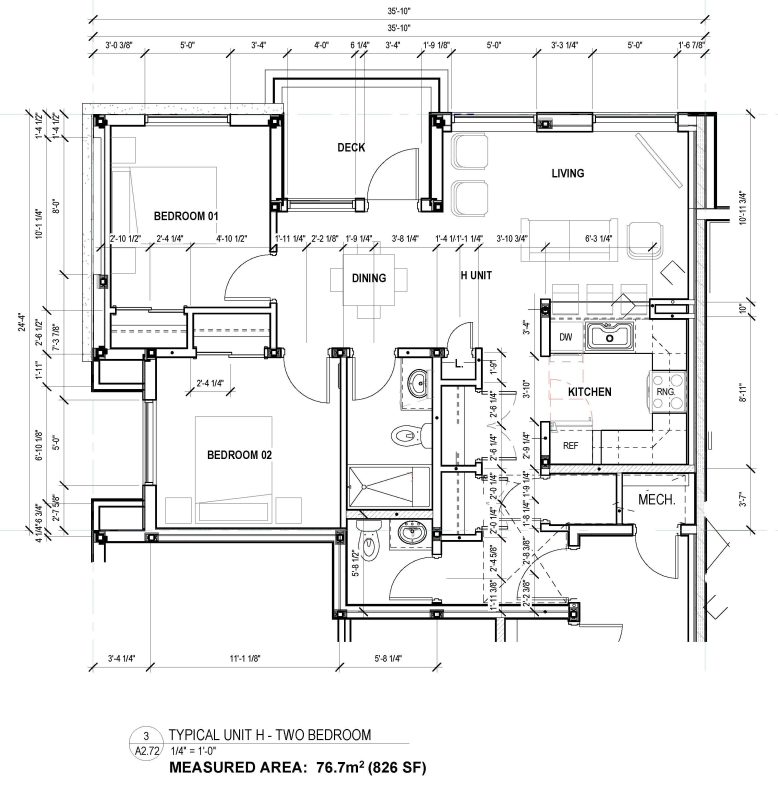
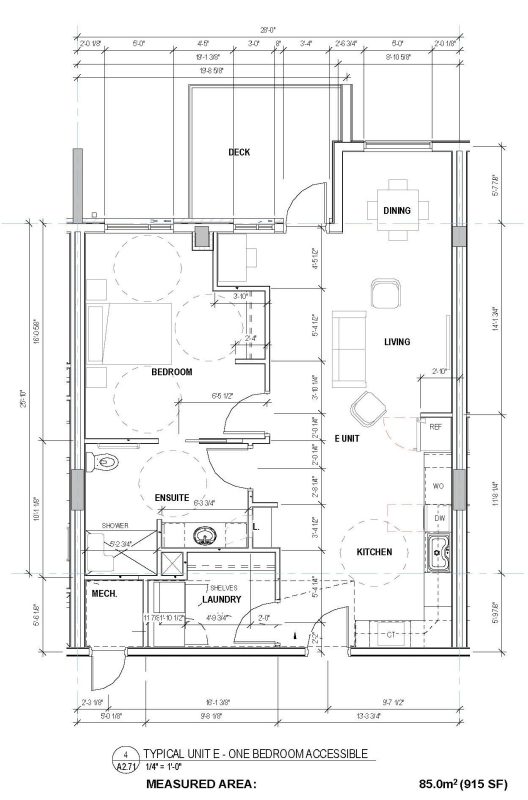
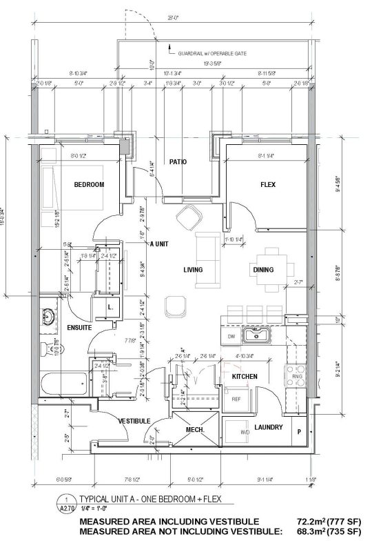
4 different floor plans
TownHomes
31 stacked units
Mix of 1 bed, 1 bed/flex, 2 bed, and accessible units
Open concept includes fridge, stove, dishwasher, AC and in-suite laundry room
6 different floor plans
Interest Form
If you are interested in our Market units at Capstone please complete the form below to be added to our contact list. Note, this is not an application for housing.
We recommend that anyone who qualifies for Market Rent Housing complete the 5-page BCHousing Market Application to apply for the units at Capstone (use Building Code DSQ).
The application only takes a few minutes and can provide access to a large pool of available housing in your area. Be sure to record the three-letter Housing Registry codes associated with the OpenScy Living buildings you are interested in.
